Saudi Arabia Embassy of Finland

In 1975 the royal house of Saudi Arabia decided to move the ministry from its former location in Jeddah to the capital, Riyadh, and foreign embassies were required to follow. A five square kilometre area on the fringes of the city was marked out for the diplomatic quarter.
By the time planning of the Finnish embassy got under way, the street network, with rows of irrigated palm trees and fountains, had already been built. The town planning regulations required a design in the Islamic tradition. The authorities nonetheless approved a plan which integrates the architectural tradition of Islamic culture and consideration for the Saudi climate with a Western Modernist style of building.
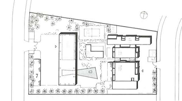
The outermost shell of the buildings observes a principle of Islamic culture in preventing the passerby from seeing into the private apartments and vice versa. Only the offices of various embassies have a view of the main boulevard.
Behind iroko and granite louvres, there are large glass walls, creating shady patios and even natural lightning.
The office building is on the boulevard. The building is partly raised on pillars, providing a visual and functional link with the ambassador’s entertainment suite.
The visual link is underlined by the mirror of water which passes from the main court under the offices and sculpture by Harry Kivijärvi. The office court is used as an entrance to the entertainment suite for large receptions.
The ambassador’s private and public rooms are on the residential street, as are the legation secretary’s and embassy manage’s apartments, servants’ quarters and technical facilities.
A separate project was a small block of flats with four apartments (3 rooms and kitchen) in the diplomatic quarter.
Another separate project was a house for the commercial secretary in the private house section of the diplomatic quarter.
The buildings are on a reinforced concrete construction. The elevation materials are plaster the shade of Riyadh sandstone, beige granite, anodized aluminium and iroko.
Source: Finnish Architectural Review 1/1988
Location
7389 Amr Aldamri St, Al Safarat, Riyadh 12512 3205, Saudi Arabia, Riyadh, Saudi Arabia
Get directionsGallery












