Logomo

Extract from the Finnish Architecture Biennial Review 2014 jury report:
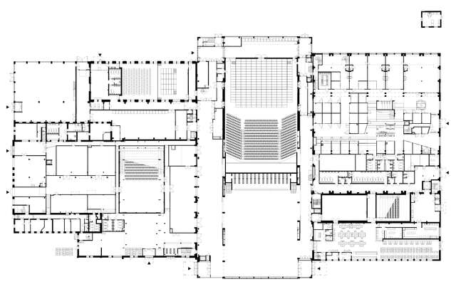
“The defunct machine workshop of the Finnish Railway Company has been reincarnated as a culture and congress centre, providing a dramatic backdrop for events and entertainment productions. The massive concert hall can seat 3,000. The seating stands glide back and forth on air cushions, allowing the space to be shrunk or enlarged with the aid of docking bays, giving the space a futuristic look. Likewise, the acoustic system can be optimized depending on whether the event is a spoken, plugged or unplugged performance. The original red-brick surfaces have been lovingly restored with a new machine room clad in Corten steel resting on the roof.”
Architect
Completion
2014
Gross Area
27000 m²
Category
Location
Köydenpunojankatu 14, Turku
Get directionsGallery



















0) { resetZoom(); currentImageIndex--; currentImage = images[currentImageIndex].src; }"
@keydown.window.arrow-right="if (currentImageIndex < images.length - 1) { resetZoom(); currentImageIndex++; currentImage = images[currentImageIndex].src; }">
/









