Kipparintalo

Kipparintalo (Skipper’s House) is a communal block of small flats serving as a first home for young residents with learning disabilities. There is a shared kitchen, living room and staff facilities at street level and a group residence for people with autism facing the yard.
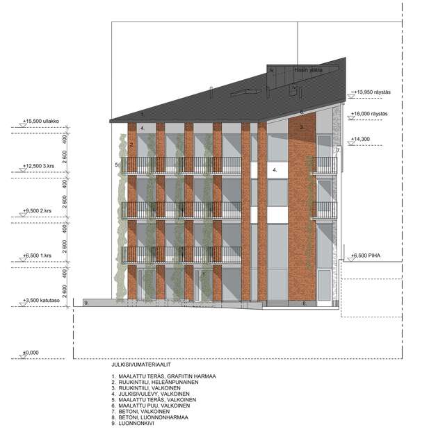
Hidden on a wedge-shaped plot among the massive perimeter blocks of the new Kalasatama district, the red-brick exterior cleverly challenges the rigid urban grid and rebelliously takes an alternate angle facing the sea. All flats and communal facilities are tiered along the street-front façade, each flat with its own small balcony. The flats seem luxuriously spacious and functionally logical: being square, they are easy to furnish and comprehend. The architects have catered to the needs of the special target group with outstanding skill and a merry twinkle in their eye.
Source: Finnish Architecture Biennial Review 2016 catalogue
Location
Arcturuksenkatu 6, Helsinki
Get directionsGallery

























