
The buildings flanking the Pohjoisesplanadi boulevard constitute a built document on trends in Finland’s 19th century economics and architecture. The Keskuskatu street represents the 20th century and the transition into an industrialised consumer society.
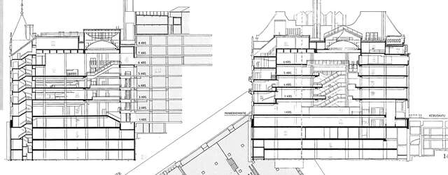
The Argos House development in the 1980s aimed to take the southern side of the Stockmann department store’s block to commercial use. Firstly, the Art Nouveau apartment building Argos, designed by Swedish architect John Settergren (Grahn, Hedman & Wasastjerna Architects) was demolished apart from its façade. The new building, designed by Gullichsen Kairamo Vormala Architects was built partly inside the old façade. The new building has its independent façade on the side of Keskuskatu street and on the corner of Keskuskatu and Pohjoisesplanadi.
The extension, apart from the Argos façade, represents Neo-Modernist commercial style of the 1980s. Large sections of glass-brick dominate the façades. The secondary elevation material is grey granite stone. The main entrance to the Stockmann department store from the southern side is situated on the corner of Keskuskatu and Pohjoisesplanadi. The logo of Stockmann is a focal part of the southern elevation.
The Argos House is a rare example of Facadism in Finland. Soon after the development of the Argos House, conservation ideals changed so that this kind of Facadism became an unpopular way to preserve historical buildings.
The principal architect of the extension was Kristian Gullichsen, other leading architects were Erkki Kairamo, Timo Vormala and Jaakko Sutela. They were asissted by Matti Muoniovaara (restoration of the Argos façade), Edda Davidsdottir, Nikolas Davies, Jyri Haukkavaara, Vesa Huttunen, Erkki Jokiniemi, Aulikki Jylhä, Martti Kajosaari, Eeva Kilpio, Ahti Korjula, Jukka Linko, Matti Linko, Lasse Maaranen, Tapio Saarelainen, Mattiveikko Salo, Timo Patomo and Jari Tirkkonen.
Source: Finnish Architectural Review 5/1989
Location
Pohjoisesplanadi 39, Helsinki
Get directionsGallery
















