Ämmäkoski Hydropower Plant

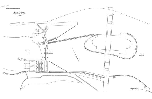
Ämmäkoski is one of the three hydroelectric power plants in the city of Kajaani. It is located in the River Kajaanijoki that flows through the city center. Ämmäkoski is located right below Koivukoski I-II. Between the two power plants lie ruins of the medieval castle of Kajaani.
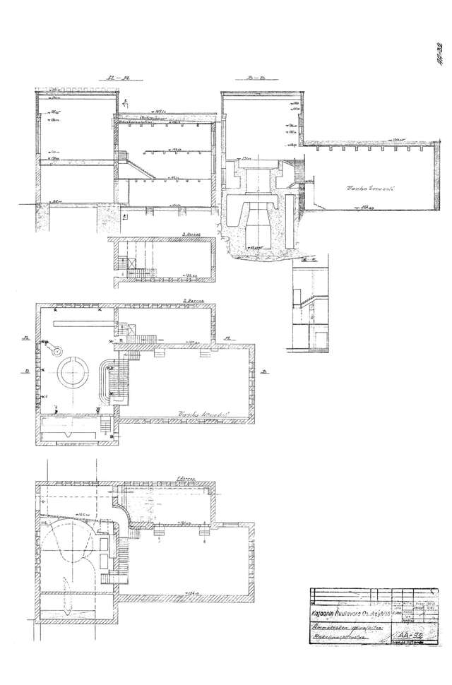
Ämmänkoski was originally constructed in 1917 and was designed by architect Onni Tarjanne in cooperation with hydropower engineer Hugo Malmi. The power house has an in-situ concrete frame and plastered brick cladding. Ämmäkoski was built to produce power for Kajaani’s industry that was located along the river and Petäisenniska area.
In 1940 Ämmäkoski was completely renovated. Architect Eino Pitkänen also designed an extension for the building. At the same time the facility’s appearance was re-styled in line with the principles of Functionalism. Tarjanne’s original vision with Art Nouveau -esque motives can still be seen in the interior.
A third turbine was also added and today the power plant produces 4.9 megawatts of electricity. The newer Kaplan -turbine was renovated in 2008. The two older Francis turbines function now as a backup machinery. The city’s business district, also designed by Pitkänen, is located right next to the power plant. It was built according to functionalist planning principles during the economic boom of 1940s and 50s.
Text: Samuli Paitsola
Location
Brahenkatu 7, Kajaani
Get directionsGallery
























