Kotka Co-operative Bank
Kotka Co-operative Bank is one of the many red-brick public buildings designed by Kaija and Heikki Siren.

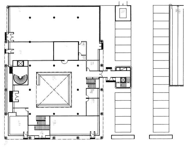
The office building has typical Modernist features with softer round corners. The focal element of the building is the main hall that reaches the whole building vertically. The ground floor was planned to be used as banks’ customer service area. The upper floors were reserved for office spaces. Kaija and Heikki Siren’s office designed also the red-brick five-storey apartment building to the the Kymenlaaksonkatu side of the plot. The development was completed in 1971.
Architects
Completion
1971
Category
Location
Kotkankatu 10, Kotka
Get directionsGallery







0) { resetZoom(); currentImageIndex--; currentImage = images[currentImageIndex].src; }"
@keydown.window.arrow-right="if (currentImageIndex < images.length - 1) { resetZoom(); currentImageIndex++; currentImage = images[currentImageIndex].src; }">
/















