
The building was designed by Väinö Vähäkallio, whose previous works include the OTK Headquarters and the Elanto Headquarters in Hämeentie.
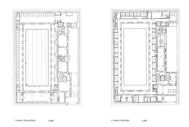
One of its distinctive features is that it was built inside a city block in the heart of Helsinki, making it invisible from the street. The four-storey swimming hall represents Nordic Classicism and has preserved well its original style and details, such as colourful tiling and furniture. It was inspired by the Centralbadet swimming hall in Stockholm.
The first floor contains a 25 x 10-metre pool surrounded by arcades, two saunas and dressing closets at the edges of the pool. The mezzanine-like second floor contains curtained cubicles for resting, wood-heated saunas and a café. A private sauna is located on the third floor. An additional sauna upon reservation with a private pool is located on the fourth floor.
Traditionally, people swam naked in the pool, but since 2001, the bathers have the choice of whether to wear a swimsuit or not. Men and women have separate days for swimming.
The latest major refurbishment was in the turn of the Millennium. Many of the original details were restored, and even original furniture was remade. The third floor that had been used as offices were returned to the use of the swimming hall. The renovation was designed by Antti Ilveskoski Architects.
Location
Yrjönkatu 21 b, Helsinki
Get directionsGallery





















