Varkaus Paper Mill Additives Processing Unit

The startup of production of fine papers of various grades in addition to newsprint at the A. Ahlström plant at Varkaus called for a new additives processing unit.
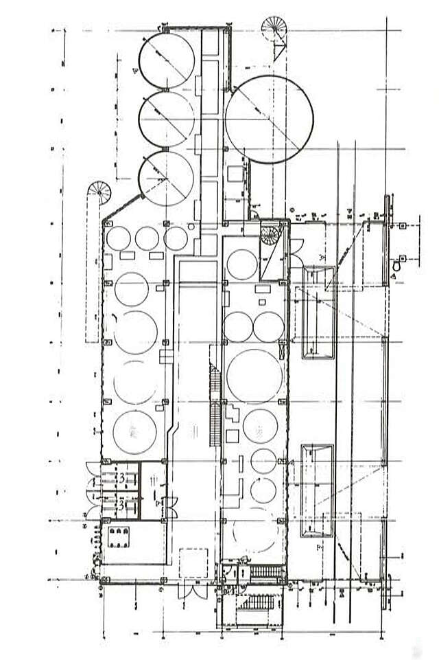
An area had to be found that would be large enough to accommodate the tubular bridges and to permit expansion of the additives unit. It had to be situated on the shore of the lake, near the paper mill built in 1977, to provide ready transport of additives by rail, road or ship.
The building was designed as an elongated unit permitting extension in two directions. The type of building was selected in cooperation with the process planners. The architecture adheres to and draws attention to the lines of the existing plant, with the tubular bridges, silos, service steps and loading bays modulated into an architectonic entity. The main stairway was designed to permit it to be moved elsewhere when the building is expanded, and later to be covered with glass. The purpose of the building is expressed in the curves of the filling pipes on the roof silos.
The processing unit itself and the tubular bridges are of prefabricated construction. The main materials used are concrete for the ground floor, anodised aluminium sheeting, glass and steel.
The building’s principal architect was Erkki Kairamo of Gullichsen Kairamo Vormala Architects. He was assisted by Jyri Haukkavaara and Timo Kauppinen. The building was completed in the autumn of 1985.
Source: Finnish Architectural Review 1/1986
Location
Ahlströminkatu 32, Varkaus
Get directionsGallery


























