STAKES and Senaatti Properties
A former brick warehouse in Sörnäinen now houses a modern office.

Senaatti Properties chose the handsome brick building, a former grain and root vegetable store in Sörnäinen as the location for its new head office. The new premises of STAKES were constructed concurrently. The original building was built in two phases, the first part, designed by Veikko Leistén was completed in 1934 and the second phase, designed by Toivo Löyskäin 1943.
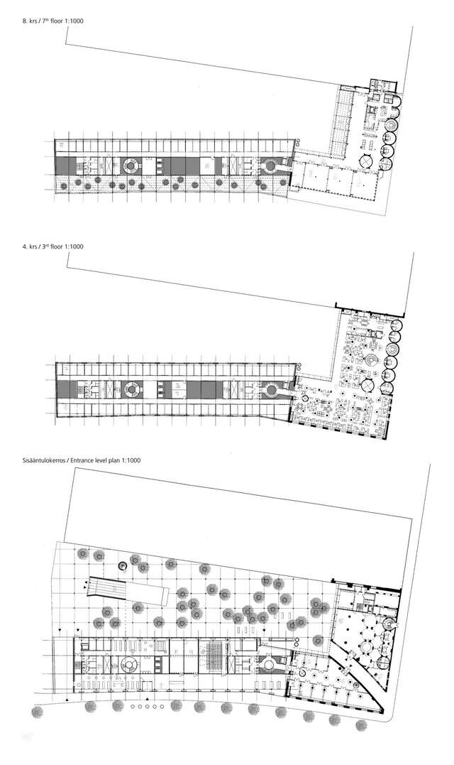
The modern office models, pursuing towards transparency, flexibility and openness, were fitted into the colossal industrial milieu, protected by the town plan. The deep plan of the warehouse restricted options for the spatial solution; a landscaped office being the most viable choice. The array of sturdy mushroom-shaped columns, sandblasted to reveal the concrete surface, creates a rhythmic system of smaller spaces within the open volume of space. Windows were enlarged to ensure sufficient sunlight. The solid appearance of the façades was retained by covering the voids with brick-colour aluminium screens. The yard-side wall was dismantled and replaced with a curtain wall.
The elevations of the STAKES premises were adapted to the architecture of the old warehouse. The walls are of in-situ brickwork. The windows of work spaces are paired and shielded with similar screes that were used in the refurbished part.
An eight-storey canyon slices the building longitudinally and all of the building’s circulation and conference spaces as well as staff’s break room are located between the concrete flanks of this void. The only added colour in the building is the leaf-green of the canyon walls.
Source: Finnish Architectural Review 6/2002
Location
Lintulahdenkatu 5, Helsinki
Get directionsGallery




























