Kauniainen Church
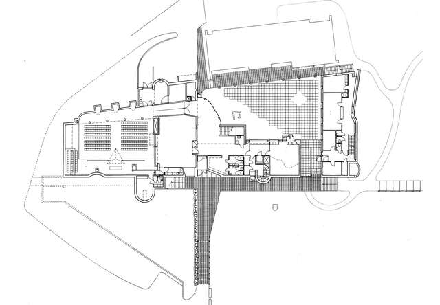
The church in Kauniainen presents a series of cubic volumes and narrow passages, creating a secluded courtyard and sheltered interior spaces.

Kauniainen church is like a fortress, with the massive entrance front – ’the wailing wall’ – and the south-facing red brick wall forming defences resisting the assailant, in this case, the outside world, steeped as it is in commercialism and all the other aspects of modern living.
Mediterranean references are the whitewashed, sparsely articulated cubic volumes, narrow passages, little piazza, alley motif and so forth. The row of columns is a classical fragment, tokens of cult building.
According to the principal architect Kristian Gullichsen (Gullichsen Kairamo Vormala Architects), the decoration at the main entrance is taken from Carolus Lindberg’s ’On the use of brick in our Medieval church’ and the archway from Le Corbusier. The masonry and wooden trelliswork are somehow derived from Alvar Aalto. The columns in the church can be said to symbolise the four evangelists, the three light wells and the triangular skylight over the altar, the Trinity.
The building includes several rooms for gatherings of different kinds and a well-equipped kitchen. There is also an office wing for the parish.
Kristian Gullichsen was assisted by architects Timo Vormala, Aulikki Tiusanen and Matti Linko. The altar crucifix and chalice are by Bertel Gardberg and Irja Mikkola designed the church textiles.
Source: Finnish Architectural Review 7/1984
Location
Kavallintie 3, Kauniainen
Get directionsGallery




























