Church of the Good Shepherd
By continuing the original building and adjusting the proportions, the extension both honors tradition and strengthens the church’s connection to the surrounding area.

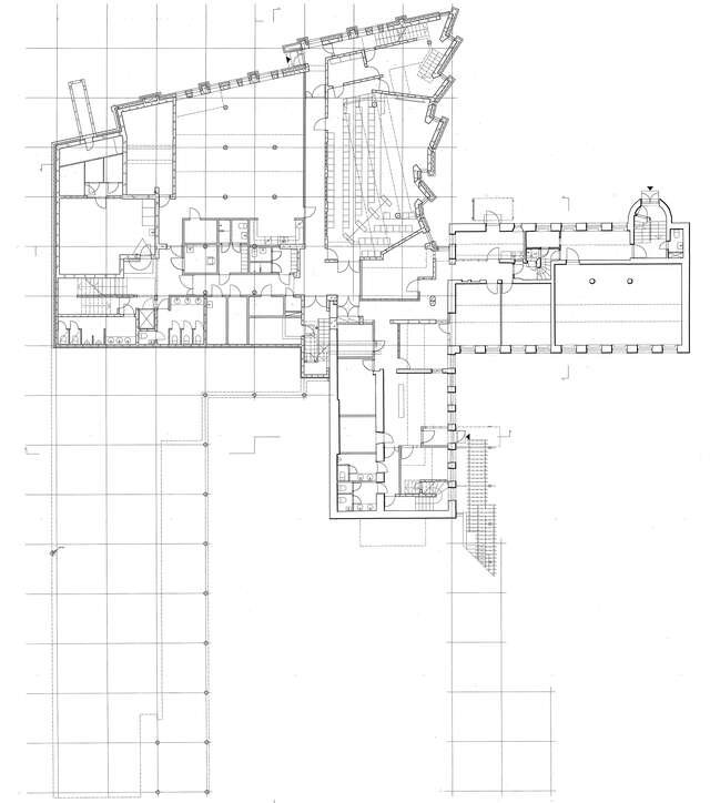
The old Pakila Church, dating from 1950, was designed by architect Yrjö A. Vaskinen. An invited competition was held in 1990 for building a new church, but the economic recession postponed the realisation of the project. In 1997, I was invited to study the possibilities of extending the existing church instead of building a whole new church.
The key solution was found in history. In the Middle Ages churches were sometimes extended so that a new choir, wider and taller than the original church, was built in place of the old altar area, as a continuation of the original nave and aisles.
The organisation of the entrance to the church forms the backbone of the whole spatial composition. The belfry guides the visitor to the court. A loggia along the side of the court leads to the main entrance. As you enter the church, you arrive in a low, open vestibule, with screen partitions allowing views to the main hall. From the vestibule you proceed to a space below the rear gallery and turn towards the altar. This preparatory spatial sequence leads the visitor into the tall, well-lit part of the church and finally to the altar area, which also forms the spatial culmination of the building. One can imagine that the journey through the altar colonnade, shimmering with light and enlivened by direct reflections, almost immaterial – through built of concrete and glulam beams – could continue to the hereafter.
The modest-scale church originally formed a congenial, subtle architectonic landmark in the Pakila area, but the building of the Kehä I ring road cut it off from its context; the natural connections were severed and the church was almost concealed behind the noise barriers. The new church and belfry have been built high enough to be clearly visible from the ring road. This was conceived as a way to indicate the centre point of this important and traditional suburb of Helsinki.
Source: Finnish Architectural Review 3/2004
Location
Palosuontie 1
Get directionsGallery





























