Åbo Akademi Book Tower
The white-rendered façades of Erik Bryggman's library have taken inspiration from the Bauhaus. The Book Tower is listed as an important work of modernist architecture.

In 1934, Åbo Akademi University received a donation to build a new library. Erik Bryggman placed the book tower in the centre of the plot to preserve the greenery. A statue of the Finnish Swedish-language poet J. J. Wecksell (1838–1907) by Yrjö Liipola was placed in front of the library.
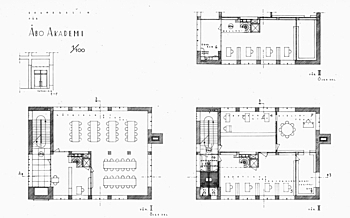
The building took the form of a book tower. The reading rooms and public services were placed on the two lower floors of the tower: the librarian’s desk and a reading room on the ground floor and work spaces and the manuscripts room on the first floor. A lift and spiral stairs connected the storages directly to the librarian’s desk. The furniture, which was simple yet emphasising quality and efficiency, was also part of the design task. There were a total of 5,5 kilometres of shelves.
The white-rendered façades have simple, Bauhaus-inspired fenestration. The windows of the public spaces on the side of the building facing the Cathedral are large, while the windows in the book repository floors are relatively small. An observatory was built on the roof in 1938.
In 1935, Bryggman made an outline proposal for a later extension to the library tower comprising an actual reading room and public services. Just before his death in 1955 Bryggman made sketches for an extension wing, which was built in 1957–1958 according to the plans by architect Woldemar Baeckman. The elegant extension fits well with the spirit of Bryggman’s design.
Åbo Akademi Book Tower is listed on the DOCOMOMO Finland registered selection of important architectural and environmental modernist sites.
Text: Mikko Laaksonen
Location
Tuomiokirkkokatu 2, Turku
Get directionsGallery





















