Ymmersta School

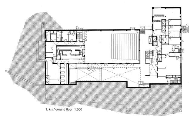
Ymmersta is a residential area near the Espoo Centre, built in the 2000s. Most of the woodland site of the new lower-level comprehensive school slopes to the north. A compact, three-storey building, with classroom clusters on the top floor provided a solution to site conditions.
The ground floor halls and canteen receive natural light through large lanterns. Each lantern links to one of the classroom clusters. Artist Kristian Kroksfors created the colour schemes of the light well back walls; children recognise their areas and their location by the colour.
The first-floor library facilities bridge around the halls and connect visually to other common areas, together forming the heart of the school.
Ymmersta School was designed by Karin Krokfors and Jukka Sulonen from Talli Architecture & Design. The building was completed in 2003.
Text: Finnish Architectural Review 2/2004
Location
Ristihaantie 5, Espoo
Get directionsGallery
























