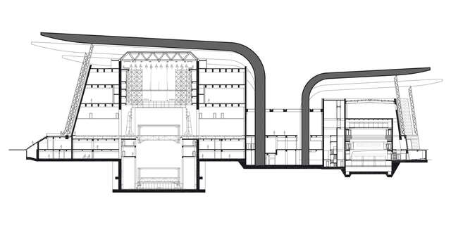
Wuxi Grand Theatre

Extract from the Finnish Architecture Biennial Review 2014 jury report:
“The grand architectural sweep is pragmatically motivated, being based on the functional layout of the Grand Theatre. The nature-inspired form of the building reflects a subtle approach. With this project, the architects have demonstrated their receptivity and ability to tackle new cultural territory and boldly interpret the symbols of a foreign culture.”
Architect
Competition
2008
Completion
2012
Gross Area
78000 m²
Category
Tag
Location
Wuxi, Jiangsu, China
Get directionsGallery















0) { resetZoom(); currentImageIndex--; currentImage = images[currentImageIndex].src; }"
@keydown.window.arrow-right="if (currentImageIndex < images.length - 1) { resetZoom(); currentImageIndex++; currentImage = images[currentImageIndex].src; }">
/




