Villa M
The coastal leisure home is raised above sea level, featuring a pavilion-like design with oak, copper, and dark-stained spruce.

The leisure home is located in a sheltered sea cove, at the confluence of a sandy beach, coastal meadow and forest. The area is a low-lying, ancient seabed. Provisions have been made for the anticipated rise in the sea level by raising the floor of the building several metres higher than its surroundings. The terrain has been shaped according to the rolling dunes at the juncture of the coastal meadow and the beach. Over time, as the meadow grows closer to the building, the site will become part of the wider landscape.
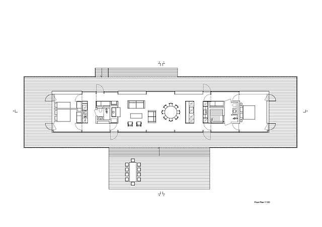
The building is light, low and pavilion-like in appearance. The long eaves offer protection from the harsh coastal conditions and connect the interior spaces to the landscape, and the building is designed for use by two generations. The more private spaces are located at the ends of the building and the common spaces are centrally placed. The roof shape adapts itself to this functional idea. Use and privacy can be regulated with sliding doors and swing doors.
The base and pillars below the high flood level are concrete, and the building above it is wooden. The facade materials are oak, copper and dark-stained spruce, which all relate to the colours found in nature.
Source: Finnish Architectural Review 4/2022
Location
74b, Gretarbyvägen, Finland, Uusimaa, Finland
Get directionsGallery






















