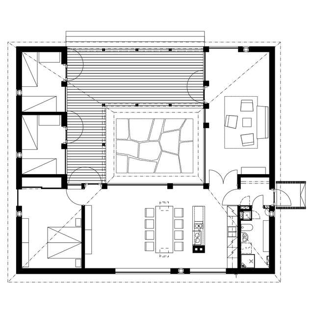
Villa Bruun

Extract from the Finnish Architecture Biennial Review 2014 jury report:
“The all-timber house has a very strong sense of material. The polished detailing and nuanced use of wood form a highly attractive tapestry of varied surfaces. Both the design and execution are a testament to skilled craftsmanship and local expertise. Creating a unique spirit is the most challenging yet also the most important goal in the design of a home. Villa Bruun offers a shining example of success in this goal. In a world where technology has turned everything into a commodity – even communication – we need buildings that speak to us in a voice that is authentic and subtle.”
Architect
Completion
2012
Gross Area
120 m²
Category
Tags
Location
Kuopio
Get directionsGallery













0) { resetZoom(); currentImageIndex--; currentImage = images[currentImageIndex].src; }"
@keydown.window.arrow-right="if (currentImageIndex < images.length - 1) { resetZoom(); currentImageIndex++; currentImage = images[currentImageIndex].src; }">
/









