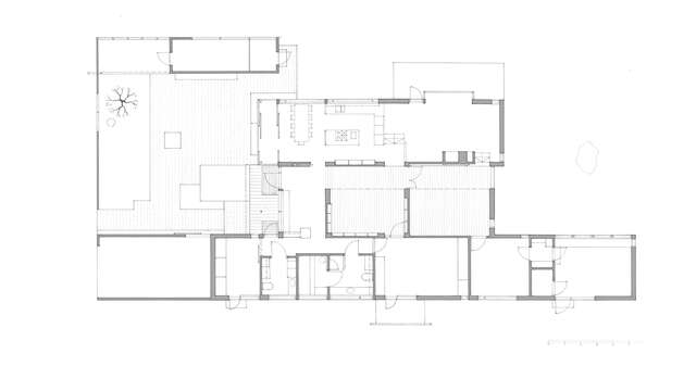
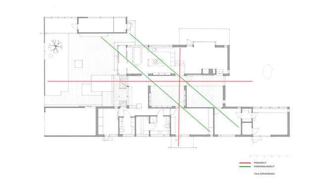
Villa Adlers

Extract from the Finnish Architecture 2010-2011 jury report by Carl-Viggo Hølmebakk:
“Architecturally this work possesses an unusually strong and relaxed confidence. The inner garden and the continuous skylight lantern admit daylight into the interiors, whilst also shielding them from the environment. The almost conventional cross-sectional geometrical forms – together with the subdivided plan – show a controlled complexity which endows the house with surprising and beautiful room sequences.”
Architect
Completion
2011
Gross Area
230 m²
Category
Tag
Location
Kirkkonummi, Suomi
Get directionsGallery

















0) { resetZoom(); currentImageIndex--; currentImage = images[currentImageIndex].src; }"
@keydown.window.arrow-right="if (currentImageIndex < images.length - 1) { resetZoom(); currentImageIndex++; currentImage = images[currentImageIndex].src; }">
/










