Vaasa City Library
Building on Vaasa’s long tradition of public libraries, the city library was renovated and extended in 2001.

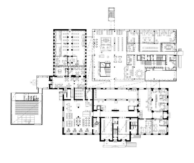
The City of Vaasa has long traditions of public libraries. The first lending library in Finland was founded in Vaasa in 1794. The present city library is situated in the centre of Vaasa. The Functionalist library’s renovation and extension were completed in 2001. Both projects were designed by Ilmari Lahdelma and Juha Mäki-Jyllilä from Lahdelma & Mahlamäki Architects. The scheme was based on the winning entry in an open architecture competition in 1997. The extension was designed so that the park-like environment surrounding the library was saved.
Apart from the book halls, all public spaces, the multipurpose hall and the staff facilities are located on the entrance level floor. Administrative facilities and separate collections are situated on the second floor of the new extension. Storage space for books is in the basement. The fiction department in the extension is a peaceful space which opens via its glass walls towards the park. The children’s and youth department is located in the main hall of the old building. The new multipurpose hall is a separate building mass connected to a secondary entrance.
Source: Finnish Architectural Review 1/2002
Location
Kirjastonkatu 13, Vaasa
Get directionsGallery



























