Tillinmäki Daycare Centre
At Tillinmäki, the daycare centre staff have participated in the design work from the very outset.

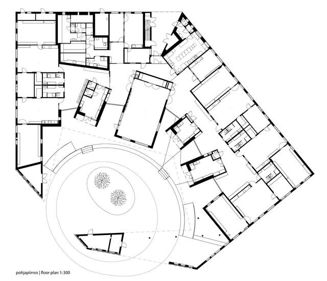
The Tillinmäki Daycare Centre has facilities for ninety children in five different groups. A sheltered courtyard is formed in the middle of the building. The principal elevation materials are greenish metal-cladding and wood.
The interiors are light and large glazed areas can be found on the courtyard side. The spaces have been organised along the radially angled corridor. The group space vestibules are oriented towards the courtyard, which dominated the interior views. Along the courtyard wall, there are small cubbyhole-like spaces. Special attention has been paid to acoustics. At the staff’s suggestion, the mini-kitchens were situated in the small group zones, and elsewhere, too, their ideas were implemented, including the gym fittings. The main entrance on the street-side locates the staff facilities. In the afternoons the daycare centre is used by the local residents’ association.
Tillinmäki Daycare Centre was designed by AFKS Architects and A-konsultit Architects and completed in 2012.
Text: Finnish Architectural Review 1/2013.
Location
Tillintie 23, Espoo
Get directionsGallery






















