Tila Loft Housing
The Tila loft flats were designed for individual customization with open spaces and high ceilings.

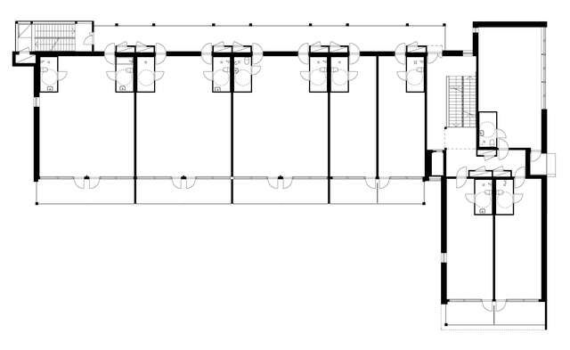
The Tila block of loft flats, completed in 2011 in the new Arabianranta district of Helsinki, was built according to a completely new concept created by architect Pia Ilonen and her architecture and design company Talli. This concept follows the “open building” and do-it-yourself philosophies leaving the apartments at a loft warehouse type stage allowing individual unit owners to build the interior of their apartments according to their wishes.
The five-storey concrete and steel frame building consists of 39 five-meter high units of 50 or 100 square meters and accessed through a gallery. The ceiling height allows installing a mezzanine floor the size the owner wishes. The only permanent built-in room elements are the bathrooms. All dwelling units open to a private terrace-like balcony through a full-width and height window wall. The common spaces including a community room, sauna and terrace are situated on the top floor.
The guardrail lighting along the exterior corridor was designed to follow people’s movement across the space. In the Finnish Architectural Review 04/2011 Pia Ilonen describes the understated architectural form as being “distinguished by open-air access balconies, a rational and pointedly-visible structural frame, and exterior shafts for linking building services. The sheltered terraces on the top floor and the redbrick facade keep the building in harmony with the neighbourhood plan.”
Talli Architecture & Design was selected to participate the Biennale Architettura 2018 in Venice by the curators Yvonne Farrell and Shelley McNamara, and Talli presented Tila Loft Housing at the biennale.
Location
Posliinikatu 3, Helsinki
Get directionsGallery

























