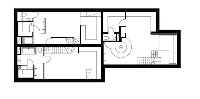
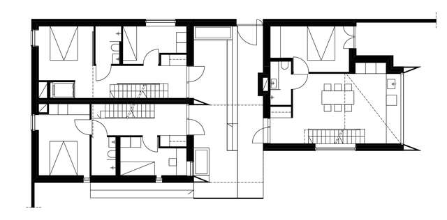
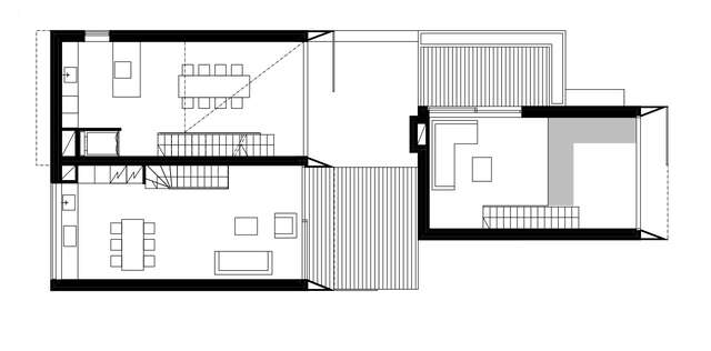
Three Infill Apartments

Extract from the Finnish Architecture Biennial Review 2014 jury report:
“This elegant white infill complex is carefully integrated with the site and along the flanking streets. The flats feel spacious thanks to their generous floor-to-floor heights. The project not only offers enhanced quality of living to the inhabitants, but also enlivens the façade row and spaces between the buildings.”
Architects
Completion
2012
Gross Area
460 m²
Category
Tag
Location
Huvilakuja 14, Helsinki
Get directionsGallery











0) { resetZoom(); currentImageIndex--; currentImage = images[currentImageIndex].src; }"
@keydown.window.arrow-right="if (currentImageIndex < images.length - 1) { resetZoom(); currentImageIndex++; currentImage = images[currentImageIndex].src; }">
/








