Think Corner
Think Corner is now an open, wood-lined hub for lectures, meetings, and co-working.

Renovated, repurposed and re-titled “Think Corner”, the former administrative building of the University of Helsinki, originally designed by Toivo Korhonen (1977), provides services for students, teachers, speakers, entrepreneurs and visitors who use it for public lectures, meetings, debates and co-working. The building has been thoroughly transformed by JKMM Architects into an exciting factory of thought that enchants everyone.
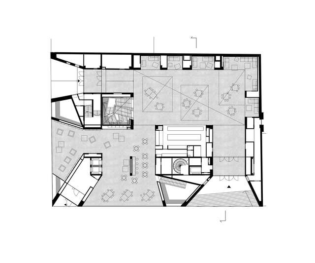
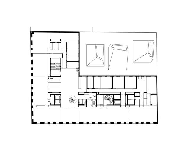
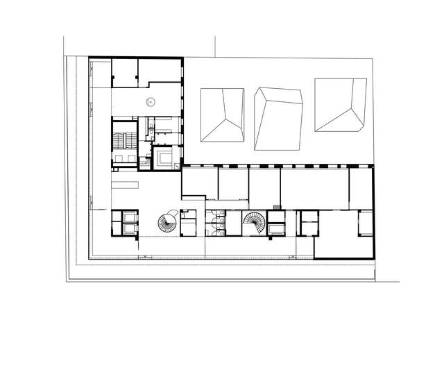
The newly carved, timber-clad entrances and large glazed walls open towards the street. Inside, all paths lead to the former inner courtyard, decked and dressed up with raw concrete and lit by quadrilateral skylights. The abundance of wood-panelled nooks and crannies that have been scooped out in the walls add to the warm, lounge-like ambience, inviting visitors to sit down, stay for a lecture, and explore the place. The maze of pathways comes together at the wooden staircase, which aids orientation and further enhances the effortless style of the architecture with its striking visual and material presence.
“The transformation of the university’s institutional presence is highly tangible. The inviting openness, spatial versatility, uncomplicated usability and the pervasive impressiveness of the spaces make Think Corner both an architectural and functional knockout.”
As a whole, the building adds a strong sense of place and presence of materials to the digital age, which is both refreshing and timeless.
Sources:
The Finlandia Prize for Architecture 2018 shortlist
The Finnish Architecture Biennial Review 2018 jury report
Location
Yliopistonkatu 4, Helsinki
Get directionsGallery





























