The Swedish-Finnish Cultural Centre Hanaholmen
Set on a rocky island between Helsinki and Espoo, the 1975 Swedish-Finnish Cultural Centre harmonises with the natural terrain.

The Swedish-Finnish Cultural Centre was built in 1975 on a beautiful rocky island, Hanaholmen, between Helsinki and Espoo. It has been classified as a building of architectural and cultural history value. Designed by architect Veikko Malmio, the building with its exposed-aggregate facade panels represents rational construction of its own time. However, it also respects the unique natural environment and terrain surrounding it.
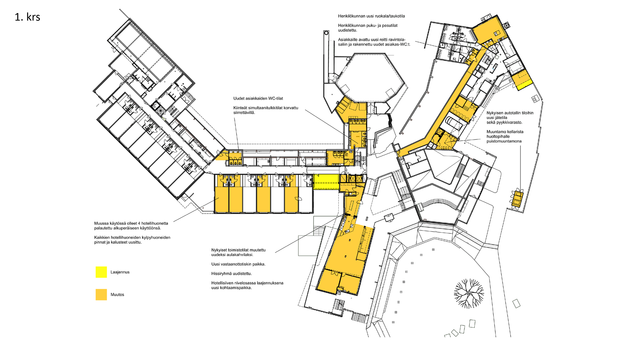
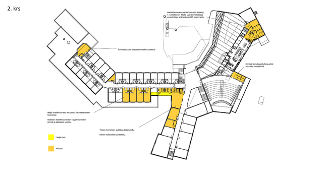
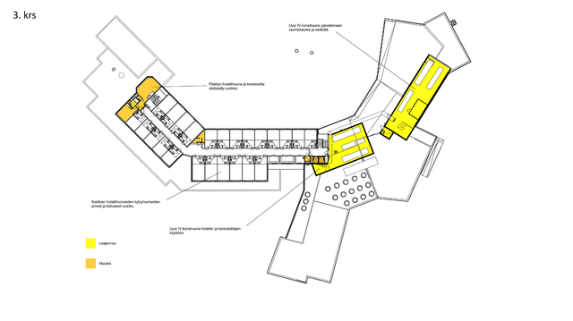
The renovation was designed by Kirsi Korhonen and Mika Penttinen Architects. The interior facilities to be preserved included the impressive sauna and pool area with sea views, an after-sauna room with an open fireplace and a restaurant, as well as the corridors in the former training centre. The character of the facades was also to be preserved.
The exposed-aggregate panels representing subtle expressivity are the most visible element of the building. The archipelago weather conditions had left them in extremely poor condition and the replacement of these panels was one of the most important tasks in the renovation project. The character of the internal facilities was to remain unchanged, while implementing the technical changes necessary for the current use of the building. An office level lighter in construction and non-clashing with the original expression was created as a new facility. The new exposed-aggregate panels imitate the original panels. The crushed feldspar from Kemiö that was used in them comes from the same region as the material of the original facade panels.
The walls of the new office level with a steel frame are mostly glass walls. The facade is wrapped in a copper net that protects the structures, providing shade and reducing the thermal loads caused by the sun. Many of the protected internal facilities look identical to the original, but the floor in the restaurant and the ceiling in the lobby are new structures. All the building services were replaced, and as a rule, concealed inside the structures.
There is a pleasant 1970s atmosphere in the building which is filled with high-class art. Landscaping carried out in the outdoor areas emphasises the presence of the majestic pines.
Location
Hanasaarenranta 5, Espoo
Get directionsGallery






















