Tapiola Church
Tapiola Church forms an integral part of the surrounding garden city. The building has been carefully refurbished to meet contemporary needs while preserving its original character.

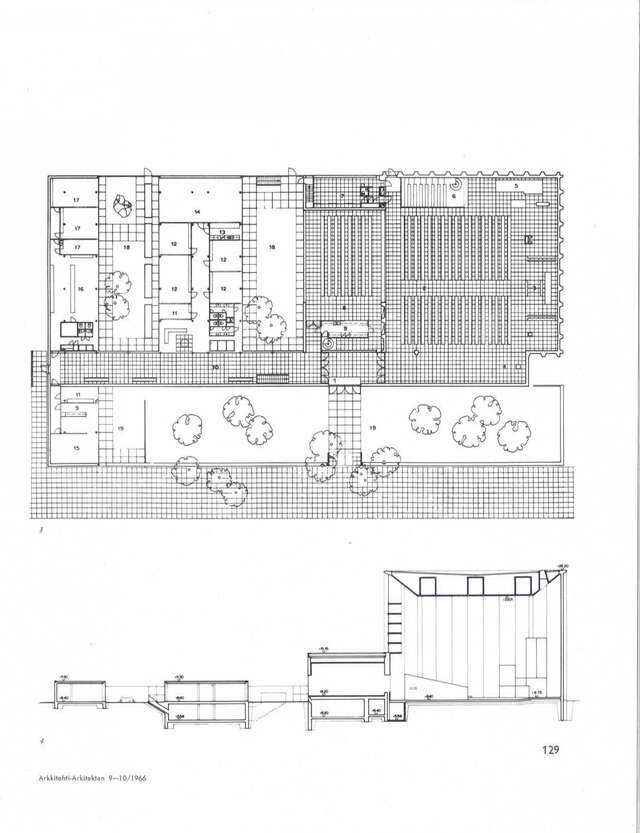
Tapiola Church is part of the built environment of the Tapiola garden city in Espoo, built in the 1950s and 1960s. Architect Aarno Ruusuvuori won the architecture competition of Tapiola Church with his entry “Pyhät Puut” (Sacred Trees). After the competition, architects Jan Söderlund and Paavo Mykkänen continued to develop the plan at Ruusuvuori’s office. The Modernist church was completed in 1965. The church’s silverware was designed by artist Bertel Gardberg, and the original church textiles were designed by artist Irja Mikkola.
As is common with buildings from the 1960s, Tapiola Church suffers from damp and was in sore need of improved ventilation. The project delivered an altogether safer, healthier and more functional building. At the same time, it has preserved the building’s patina and leaving the visitor with a sense that nothing has actually really changed.
The approach has been to carry out interventions as unobtrusively as possible. In the key spaces, solutions have been found for plumbing, ventilation and other building technology that are entirely hidden. The tiled floor in the nave, for example, was dug up and restored once the building works were finished.
The first set of pews was removed to allow for the building of a ramp, making the altar fully accessible. The addition is so subtle, it feels as though it has always been there. The most significant changes have been introduced in the wing added in the 1990s, where office space has been converted into a cafe and a smaller workspace.
Tapiola Church is a key feature of this garden neighbourhood built in the 1950s and 1960s. The work carried out to refurbish it represents a valuable contribution to the community as a whole.
Tapiola church’s façades are of prefabricated concrete panels, glass and steel. Dark grey brick walls and the red tile floors form a contrast in the stripped-down interior. The simplified architecture is emphasised by the natural light, straight daylight doesn’t reach the assembly hall.
Architect Anna Jäämeri-Ruusuvuori designed a renovation and an extension to Tapiola church, which were completed in 1992.
Source: Finlandia Prize for Architecture 2024 Jury
Location
Kirkkopolku 6, Espoo
Get directionsGallery
























