Suna School
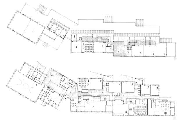
The school accommodates 300 pupils in a long, narrow red-brick building with a central lobby and preserved forested hill as a schoolyard.

The school stands on a forested hill in the middle of a housing area near Espoo city centre. The design is long and narrow and clings closely to the walkway along the north edge of the site. This meant that the top of the hill, with its trees and rocks, could be preserved for the schoolyard.
The building is cut across longways by a two storey high, chasmlike lobby which is very narrow in places. The sloping roof has narrow strip windows through which the interior gets sunlight.
There are interesting views of the main interior from the open stairs leading to the first floor and from the gallery corridor, and of the surroundings from the window at the end of the lobby.Inside, the building is white with small splashes of colour. The exterior is red brick, and partly rough-plastered in white.
There are 300 pupils, and a couple of special classes as well as the usual primary level. Planning started in 1982 and the school was opened in autumn 1985. Principal architects were Kari Järvinen and Timo Airas. They were assisted by Sirkkaliisa Jetsonen, Mikko Karhu, Jorma Latva, Sari Schulman and Taina Silmujärvi.
Source: Finnish Architectural Review 6/1986
Location
Solisevantie 10, Espoo
Get directionsGallery


















