St. Lawrence Chapel
The new funeral chapel near St. Lawrence Church is a contemporary addition to a nationally significant cultural landscape, designed to complement the historic stone church and its surroundings.

The Evangelical Lutheran Church in Vantaa organised in the spring of 2003 an open architecture competition for the design of a new funeral chapel near the historic Saint Lawrence Church. The area has been declared a nationally significant milieu of cultural history. A total of 194 entries were received, and the entry called “Path” submitted by young architects Anu Puustinen and Ville Hara was selected as the winner. After the competition, Puustinen and Hara established their office Avanto Architects.
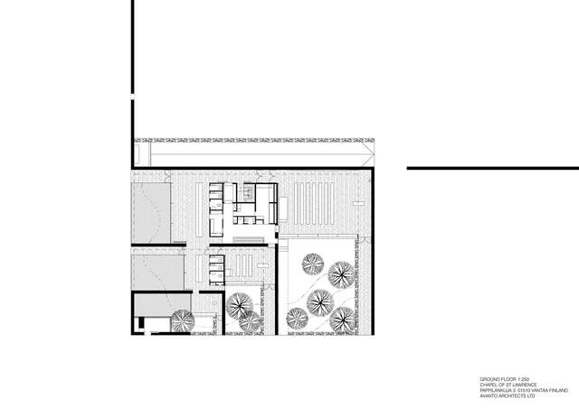
The old stone church and its bell tower retain their dominant role in the landscape. The new chapel complements the environment and connects the elements of the area in a non-assuming manner. The building has been adapted to the scale of the surrounding buildings by dividing it into smaller parts. The theme of the stacked stone wall enclosing the cemetery has been continued. A series of three halls of different sizes is hidden inside rectangular walls. The bell tower in the corner of the walls completes the composition and directs one’s eyes upwards.
The new building was built using the same materials as in the existing buildings. Load-bearing walls are massive brick walls. The storing properties of the construction equalise temperature and humidity variations. Bagged walls coated with white lime plaster provide a calm, light background to the events. The rest of the frame is built of steel structures. Partition walls are cast-in-situ white concrete walls. The copper surfaces have all been patinated by hand, and patinated copper net is used on the walls and ceilings of the halls. The copper net acts as a semi-transparent surface between the chapel halls and the cemetery, screening the view from both sides of the glass wall and restricting the heat load of the sun inside the halls. The natural stonewalls running around the gardens and courtyards have been stacked with stones excavated on the site. Public areas feature slate floors.
The target lifespan of the chapel is two hundred years. Life cycle simulation was utilised in the design. Material choices were guided by not only durability but also domestic origin. The project was characterised by a large amount of work carried out on the site and handicraft orientation. The work methods tie the building to its location and show off the human touch. The cast-in-situ white concrete walls create the ambience particularly in the farewell room, lobby areas and the staircase, providing a calm, light background to the events.
The art integrated into the building emphasises the expression of the architecture. The “Via Crucis” works of art by sculptor Pertti Kukkonen depict the turning point of life’s path. Kukkonen also played two other roles in the implementation of the chapel; he finalised the white concrete cast-in-situ structures and carried out the demanding patination process of the copper surfaces. Pekka Jylhä’s glass art is represented by “Soul” in the staircase to the coffin display room and by “Grief” in the actual display room. Pertti Kukkonen has designed cross-shaped works of art realised in fibre optic concrete. They have been embedded in the walls and in darkness reflect a glimmer of light through the thin bagging.
The Chapel of St. Lawrence won the 2010 Concrete Structure of the Year award for skilful design and professional implementation. The chapel bears the clear stamp of handicraft, and the uncompromising attitude of the builders with respect to producing quality is visible in the harmonious end result.
Text: Betoni 1/2011
Location
Pappilankuja 3, Vantaa
Get directionsGallery





















