Sipoonlahti School Extension
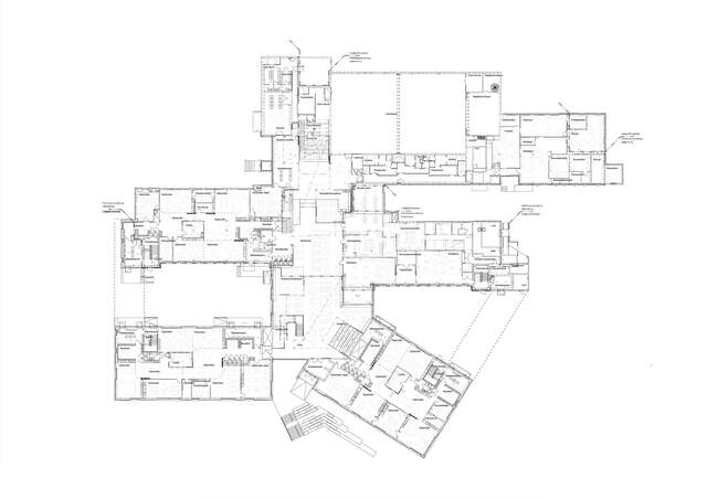
The extension of the Sipoonlahti school campus also sees the updating of the existing school building. The old and the new buildings are dovetailed in the central lobby.

Söderkulla in Sipoo, located alongside the old road from Helsinki to Porvoo, is growing rapidly to become one of the major hubs in the eastern capital region. Thousands of new residents need services, children need schools, and parents need evening sports facilities.
If Söderkulla has undergone a rapid change, so too have the spatial requirements for teaching. The original school, designed by architect Olli-Pekka Jokela and taken into use only about ten years ago, needed additional space for 700 pupils as well as a thorough overhaul due to the changes in the national curriculum. The 2016 invitational competition for the school extension was won by the registered collaborative of Architects Rudanko + Kankkunen and Architects Frondelius+Keppo+Salmenperä, and the extension was completed in autumn 2019.
The Söderkulla school campus sits beautifully in the landscape of the old Porvoo road. Once the old shabby sports hall by the roadside is demolished, an even better view will open up of the castle-like new building. The building’s facades have a contemporary feel: large areas of glazing, and plenty of brick. The large windows facing the main road bring a feeling of scale and open up the school’s activities to the outside, while their thoughtful placement also offers stunning views from the interior out to the school yards and surrounding nature. The yards are designed with great care, and the assured signature of landscape architect Soile Heikkinen is recognisable in the choice of planting. The skatepark is also the work of a top designer, landscape architect Janne Saario.
Source: Esa Laaksonen’s review in Finnish Architectural Review Ark 5/2021
Location
Neiti Miilin tie 6, Sipoo
Get directionsGallery




























