Sibelius Hall
Sibelius Hall combines old factory structures with new timber sections, creating a human-scaled interior and a central foyer that opens onto Lake Vesijärvi.

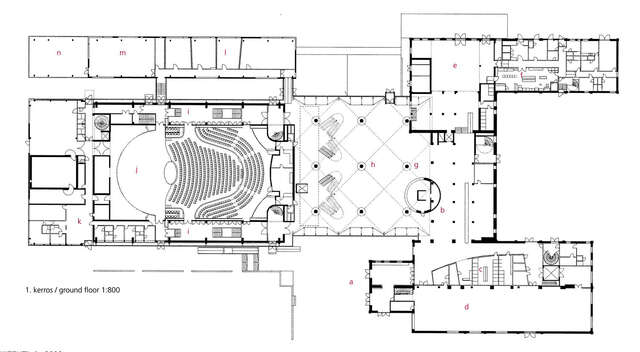
Sibelius Hall, which is based on the winning entry in an architecture competition held in 1998, is located in the old timber-industry area of Lahti. The totality was divided into separate building sections which apply the principles of old factory halls. A unique architectonic character was created for the new section by the timber structures, where the almost tangible small scale of the furnishing and wooden joints is encountered in the interior.
Housed within the old joinery factory are the entrance lobby, the more important public facilities, the information points and the exhibition accommodation, while beautiful views to the west over Lake Vesijärvi are obtained from the seminar and rehearsal rooms, the artistes’ foyer and the covered outdoor terrace, all of which are located in the wing parallel to the shore.
The old and new sections are linked by a transparent forest hall – creating an impression of the airy space of pine forest – with the spatially well-defined foyer area, which also acts as a banqueting hall as well as forming the core of the whole building, opening onto the lake.
The building was designed by architects Kimmo Lintula and Hannu Tikka (Artto Palo Rossi Tikka Architects).
Source: Finnish Architectural Review 4/2000
Location
Ankkurikatu 7, Lahti
Get directionsGallery




















