Saukonpaasi Housing

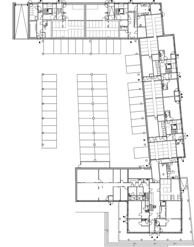
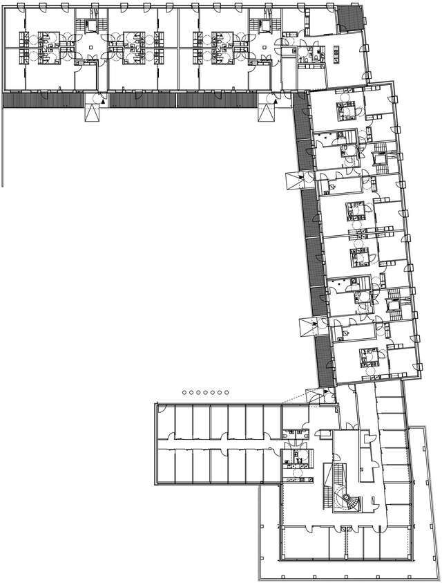
This social housing project Saukonpaasi by Huttunen Lipasti Pakkanen Arkkitehdit is part of the new Jätkäsaari housing area in Helsinki. The housing block closes the inner garden from the outer streetlife. The envelope of the block is made of white prefabricated concrete elements. The semi-transparent balcony elements serve as solar protection, offer privacy and provide for a high degree of transparency thanks to the perforations. There is a continuous play of larger and smaller openings in the brick wall. The building was completed in 2014.
Architect
Completion
2014
Category
Tag
Location
Länsisatamankatu 23, Helsinki
Get directionsGallery












0) { resetZoom(); currentImageIndex--; currentImage = images[currentImageIndex].src; }"
@keydown.window.arrow-right="if (currentImageIndex < images.length - 1) { resetZoom(); currentImageIndex++; currentImage = images[currentImageIndex].src; }">
/











