Salokunta Church

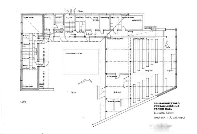
Salokunta Church in Sastamala, Pirkanmaa region is one of architect Timo Penttilä’s early works. He became later known for his large-scale public projects such as Helsinki City Theatre and Ratina Stadium in Tampere. The red-brick Salokunta Church is situated outside populations centres, practically in the middle of woods. Focal features of the building are the glass walls opening from the assembly hall to the surrounding pinewoods and sensitive dialogue between red brick and pine wood. The building forms a sheltered courtyard which is dominated by the concrete bell tower. Salokunta Church was completed in 1960.
Architect
Completion
1960
Category
Location
Kärppäläntie 248, Sastamala
Get directionsGallery










0) { resetZoom(); currentImageIndex--; currentImage = images[currentImageIndex].src; }"
@keydown.window.arrow-right="if (currentImageIndex < images.length - 1) { resetZoom(); currentImageIndex++; currentImage = images[currentImageIndex].src; }">
/











