Ruusutorppa School

The centre of Leppävaara, in Espoo, is a rapidly developing population centre by the main railway line. The City of Espoo organised an open architectural competition for the Ruusutorppa School in 1996 in order to find new spatial solutions meeting the requirements of modern pedagogic methods. The point of departure was ecological sustainability. The building houses pre-school and lower-level comprehensive school facilities.
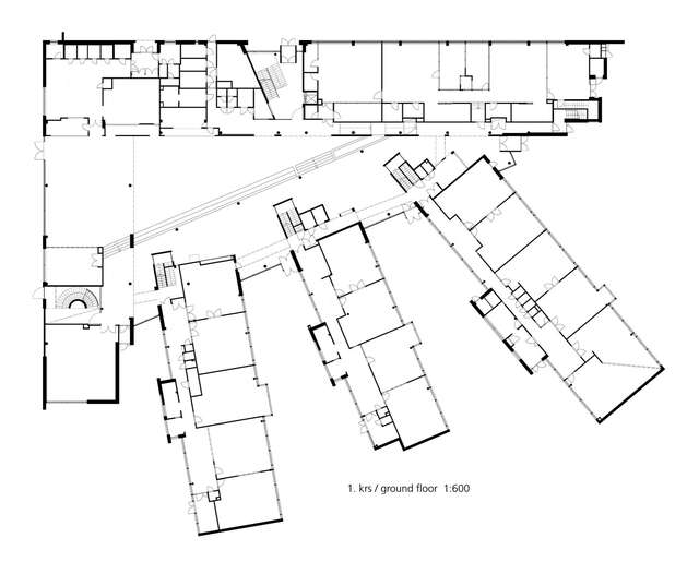
The three-storey street-facing wing houses subject-specific classrooms, while the timber-clad south wing contains clustered, basic education classrooms. A glass-roofed dining / multifunction hall connects the two.
Ruusutorppa School was designed by architects Esko Talonpoika, Taina Jordan and Tapio Keiramo from Tilatakomo Architects and was completed in 2002.
Text: Finnish Architectural Review 1/2004
Location
Leppävaarankatu 24, Espoo
Get directionsGallery

















