Ruokopilli Daycare Centre

The Ruokopilli Daycare Centre, designed by architect Mikko Kaira, is situated in the Jokiniemi district of Tikkurila, in the City of Vantaa. The site is in a large park area, part of the property of the Finnish Forest Research Institute. The park is old forest abundant with tall pines, which gives the area a particular scale and atmosphere. The site is situated at the north end of the park, sloping gently to the north. The park and the site are bordered on the north side by an area of light-coloured blocks, behind which is Jokiniemi’s new school.
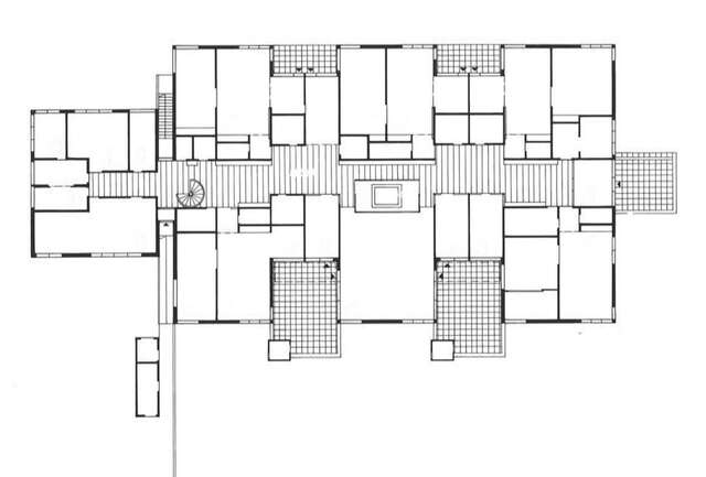
The building is situated at the eastern end of the small site, leaving space for a coherent playground in front. The daycare facilities are at the same level, but because of the sloping site, the staff facilities in the north part of the building are on the first floor, with the ground floor housing the technical facilities.
The playing area of the daycare centre includes five ‘home area’ with spaces for playing, resting and group work, and a play hall. These spaces were designed to form six units of the same size, systematically grouped along the inner street crossing the building. The two actual entrances with boot porches (for the washing of booth and other rainwear) are located between the units opening onto the yard. The entrances lead directly to the inner street, which houses a lot of useful space. The building has no actual corridors. The internal street has turned out to be a convenient area and can also be used as an extra play area. Since Ruokopilli is specifically designed for allergic children, the larger-than-normal spaces in the daycare centre is a necessity. Interior materials were selected from the range of materials and combinations-of-finishes classified as emission-free by the Asthma and Allergy Federation in Finland. An example of these is the surfacing of the inner street, which is made of safe quartz vinyl tiles. Together with a corresponding seam-sealing strip, this creates a surface resembling a flagstone floor. Except for the ground floor structure, the building is timber-framed. The vertical frame, based on a rational and iterative dimensioning system and combined with efficient use of space, enabled the realisation of the project ‘with normal costs’, that is, according to the original cost estimate.
The daycare centre with its yellow ochre tinted, battened plywood surfaces differs from the white buildings in the area; the unifying material is the white tinted plywood. The white and yellow ochre together create the main colour scheme of the building, accentuated with the dark grey tinted metal structures. The exterior architecture is formed by the wooden ‘home areas’, which appear as individual buildings, the light part of the inner street and the parts above the eaves line.
Source: Finnish Architectural Review 5/1999
Location
Viljo Sohkasen katu 10, Vantaa
Get directionsGallery


















