Roihuvuori School
Roihuvuori School is a notable example of 1960s Finnish constructivism, renovated in 2016 to preserve its light-filled concrete structure and original spatial layout.

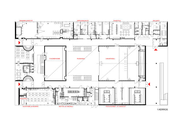
The school, designed by Architect-Professor Aarno Ruusuvuori (1925–1992), was completed in 1967. An outwardly simple, rectangular concrete building with a gentle access ramp at one end, the school is reminiscent of an industrial building but its interior spaces are finely allocated using natural light.
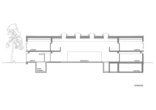
The teaching areas are bathed in light: the windows with a glass block base extend from floor to ceiling. Corridors are naturally illuminated by means of windows placed at the top of partitions, and the building frame offers long unobstructed views. The exposed concrete roof beams suggest a reference to historical architecture. The Roihuvuori School is regarded as a prime example of Finnish 1960s constructivism, which sought to underline the significance of structure.
The school had already been decided to be pulled down because it was in bad condition and considered outdated in terms of teaching facilities, when in 2013 the city council passed a resolution to renovate it. Of all the schools built in Helsinki in the 1960s, the Roihuvuori School had been classified as the most architecturally significant. The renovation was completed in 2016.
One of the hardest tasks in renovation is to devise an air-conditioning system consistent with present-day requirements. In Roihuvuori, the solution was to build two longitudinal service tunnels to serve as ventilation ducting and sacrifice one room in the middle of the building for the AC system machine room. As a result of these innovative solutions, the original spatial structure could be successfully preserved.
Source: Finlandia Prize for Architecture 2017 shortlist
Location
Vuorenpeikontie 7, Helsinki
Get directionsGallery





























