Pehtoori Daycare Centre
Pehtoori is centred around a greenhouse and features nature-facing, colour-coded child-care groups.

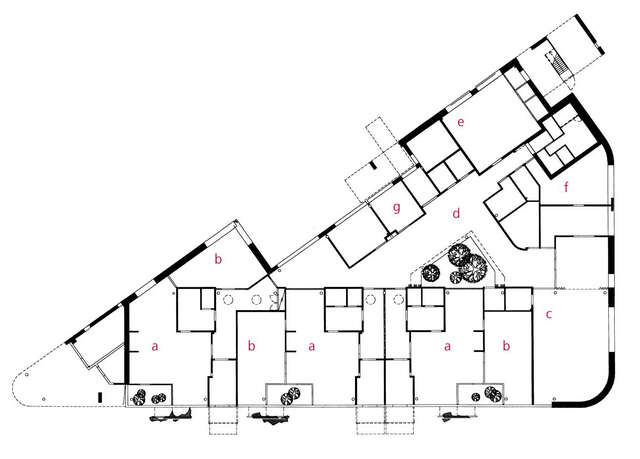
Day nursery Pehtoori’s is set in a quiet rocky landscape protected by dwellings. The rooms open out through glass walls to a park, while the façade bordering the entrance courtyard has a more public character.
Pehtoori is one of the few public buildings in the Viikki ecological area. The nursery’s overall form has a solid nature. A greenhouse was placed in the centre of the triangular plan, to give light to the interior world. It also acts as the functional heart of the nursery. There are three child-care groups, each of which also has its own individual planting area, which opens out into nature.
The goal was to create a basis for a green atmosphere, coloured by indoor plants and the park. The children can grow their own plants indoors, while the rocky landscape lives according to the seasons. Each child-care group has been given its own character; one group is coloured yellow, one green, and the third bluish. Outside, the building is mainly finished with ochre-tinted rendering while the higher section treated with dark grey. The infill sections of the façade are mainly of coloured plywood.
Pehtoori Daycare Centre was designed by architects Kirsti Jokela, Olli-Pekka Jokela and Marko Kivistö.
Source: Finnish Architectural Review 4/2000
Location
Erik Spåren tie 7, Helsinki
Get directionsGallery














