Paasitorni, Helsinki Workers' House
The Helsinki Workers’ House, also known as Paasitorni, is a conference and congress centre of exceptional value in terms of its architecture and cultural history.

The Helsinki Workers’ Association originally commissioned the architectural office of Herman Gesellius, Armas Lindgren and Eliel Saarinen to design its building. However, their plans were never implemented. Instead an open architectural competition was organised in 1906 and won by Karl Lindahl and Max Frelander.
The simple castle-like form of the building indicates a departure from the ample forms of National Romanticism. The sumptuous and ornamental interiors are the counterpoint to the rugged façades in granite excavated from the site. The most important interiors are the assembly hall, main staircase and the downstairs restaurant.
During the Finnish Civil War in 1918, the house was subjected to artillery fire and the tower and the assembly hall had to be rebuilt. A granite-clad annex by Karl Lindahl was built on the corner of Paasivuorenkatu in 1925.
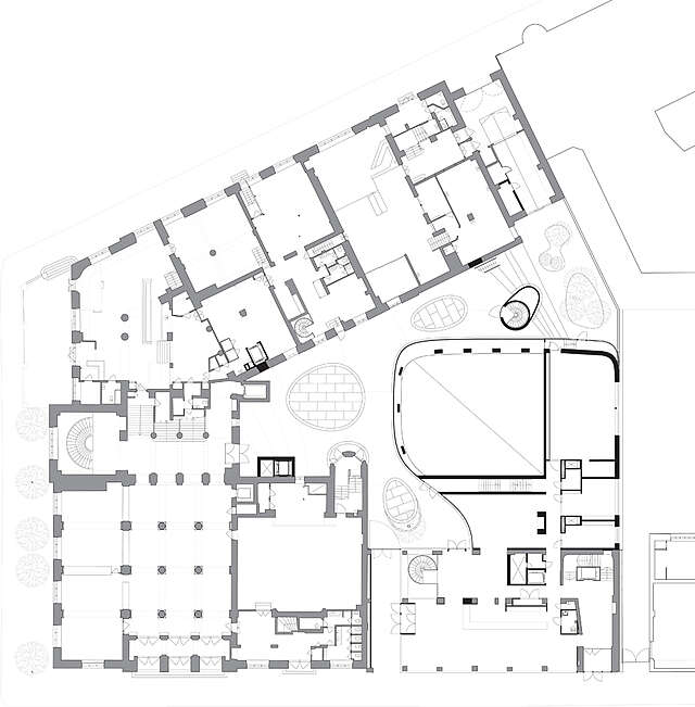
In the mid-1990s the decision was taken to commence restoring Paasitorni’s premises in keeping with the architect’s original plans. The premises were skilfully restored between 1996 and 2007. In 2012, an annex to the complex, Hotel Paasitorni with adjacent congress spaces, was built in the inner courtyard by K2S Architects. Today, in addition to the hotel, Paasitorni houses almost 30 spaces for meetings and events and a total of four restaurants.
In 2015, the floating restaurant Meripaviljonki was opened in front of Paasitorni, on the Eläintarhanlahti Bay, by architect Simo Freese.
Location
Paasivuorenkatu 5, Helsinki
Get directionsGallery


















