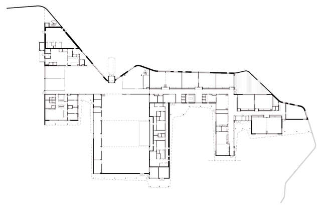
Niemenranta School

Extract from the Finnish Architecture Biennial Review 2014 jury report:
“The architecture is a combination of local tradition and contemporary accents. The building pays tribute to the regionalist Oulu School of Architecture, but the references are reinterpreted in a relaxed modern idiom and complemented by fairface and polished concrete. The school is an appealing environment for learning – fresh, but not faddish.”
Architects
Completion
2012
Gross Area
3670 m²
Category
Location
Nuottamiehentie 1, Oulu
Get directionsGallery









0) { resetZoom(); currentImageIndex--; currentImage = images[currentImageIndex].src; }"
@keydown.window.arrow-right="if (currentImageIndex < images.length - 1) { resetZoom(); currentImageIndex++; currentImage = images[currentImageIndex].src; }">
/











