New Student House
The 1907 design competition for the New Student House, built on a plot next to the old one, was between four invited architects. Based on the second stage of the competition, the assignment was given to Armas Lindgren and Wivi Lönn.

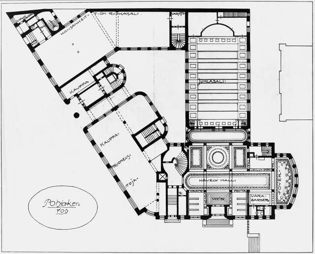
Lindgren and Lönn placed a hotel, offices, soup kitchen, and business premises, stipulated in the brief, in a wing parallel to Mannerheimintie and the facilities of the student unions in another wing. At the junction of the two externally and functionally distinct parts, they placed a round domed tower. The construction was completed in 1910.
Lönn was a masterful designer of spatial solutions and structures, whereas Lindgren held a passionate interest in the creative composition of façades and ornamentation and was thoroughly familiar with both Finnish and European architectural traditions. The two architects followed this division of tasks in the design of the New Student House and also in their other landmark work, Estonia Theatre in Tallinn, completed in 1913. The placement of very different spaces within a single whole seems to have been done in cooperation.
Most of the interiors of the New Student House have changed over the years, but the façade has retained its principal features as designed by Lindgren. The most significant change came in 1925, when two storeys, designed by Lindgren, were added to the building. The stylised historicised decoration, clear symmetry of the façades, arched windows, ornamental balconies topping the bays, and façade zones with different types of fenestration are typical of Lindgren’s work around 1910. Distinctly national themes have been replaced by universal ones, perhaps most strikingly in the row of statues over the main entrance that depict the four classical temperaments – Melancholic, Sanguine, Phlegmatic and Choleric – by sculptor Johannes Haapasalo, after Lindgren’s instructions.
Source: Art Nouveau in Helsinki – Architectural guide (Helsinki City Museum)
Location
Mannerheimintie 5, Helsinki
Get directionsGallery






















