Ministry of the Interior

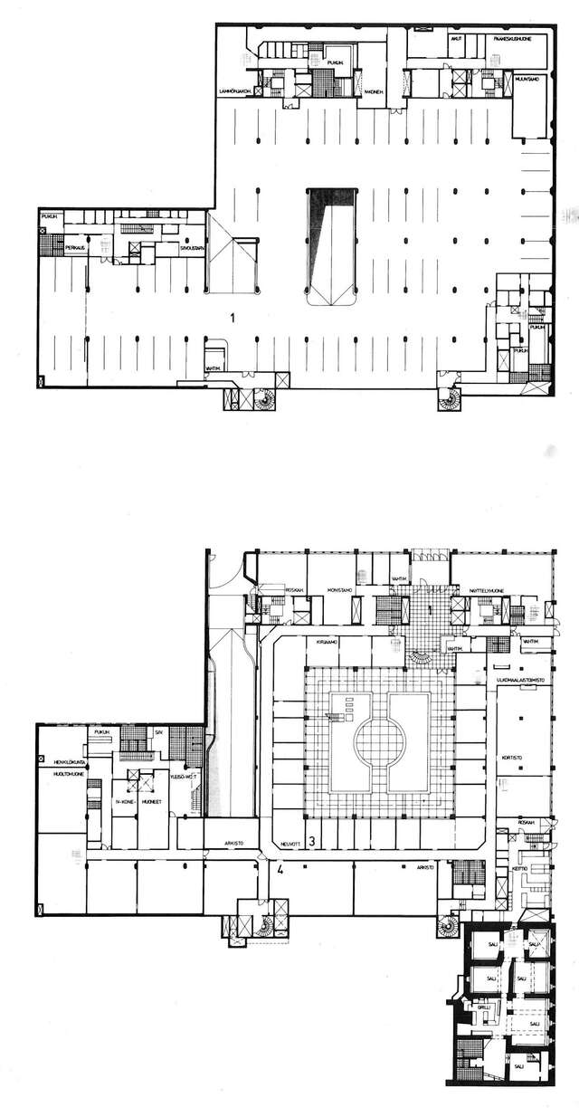
An initiative was made in the late 1960s on renovation and reconstruction of the block bounded by Hallituskatu, Snellmaninkatu, Kirkkokatu and Ritarikatu near Helsinki’s Empire centre. The central part of the block was to be opened up, the old buildings in the courtyards demolished and the buildings lining the streets renovated as government offices.
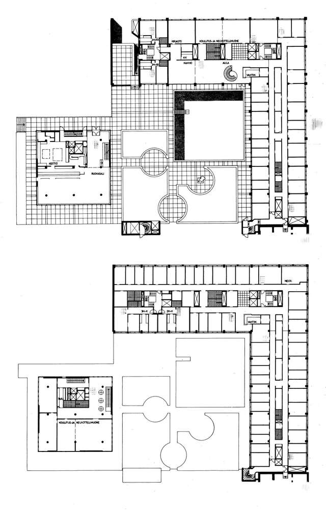
The commission placed before the architects in 1969 included the compilation of a block plan, renovation of the remaining buildings and the planning of the Ministry of the Interior building. The courtyard area has been reserved for pedestrian use and greenery. The parking places are in two basements reached from Kirkkokatu. Areas of greenery have been set in the courtyard.The Ministry of the Interior building is a supplementary part of the renovated closed block but also constitutes an independent unit separate from the other buildings. On Kirkkokatu it forms part of the row lining the House of Estates’ park, which is all of a height. On Ritarikatu it has been kept below the eaves line of the adjacent old stone building by having the top storey recessed.The old buildings in the area are plastered and painted, and the façades of the new office building are in yellowish concrete units. The surface of the concrete has been sand-blasted to make it matt, thus blending the new building more delicately with its neighbours.
The room programme, which called for offices of various sizes, demanded adaptability, leading to the adoption of homogeneous strip windows on the outside walls. The distance between the axes of the bearing columns along the front is 750 cm and that between the windows in the vertical 125 cm. For variety, the window module on the outside walls is used differently on the various storeys: on the 2nd and 3rd floors the modular grid is shifted half a module in relation to the column system; on the 5th floor the window module is twice as dense. The lower part of the street side of the building is faced in grey granite. On Kirkkokatu the building has six floors of offices, and on Ritarikatu five.
The State works of art committee commissioned three works for various locations in the block. One of them, Tapio Junno’s bronze sculpture ‘Man with Shield’ is in the courtyard. The integration of these major works into the architectural whole provided a most encouraging experienace of such collaboration between artists and planners.
The building was designed by Osmo Lappo and Jussi Suomala. They were assisted by Jaakko Rantanen, Jouko Nieminen, Fred Wegelius, Matti Seiro, Päivi Mikola-Saurama. Timo Tapiovaara and Leena Aaltonen were in charge of the interior design.
Source: Finnish Architectural Review 3/1983
Location
Kirkkokatu 12, Helsinki
Get directionsGallery























