Meripaviljonki Restaurant
Meripaviljonki is a floating restaurant located in the Hakaniemi bay area.

The building was designed by architect Simo Freese. He was assisted by architect Eva Knif and interior architect Anu Halme. The building was completed in 2015 and its terrace in 2019.
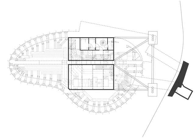
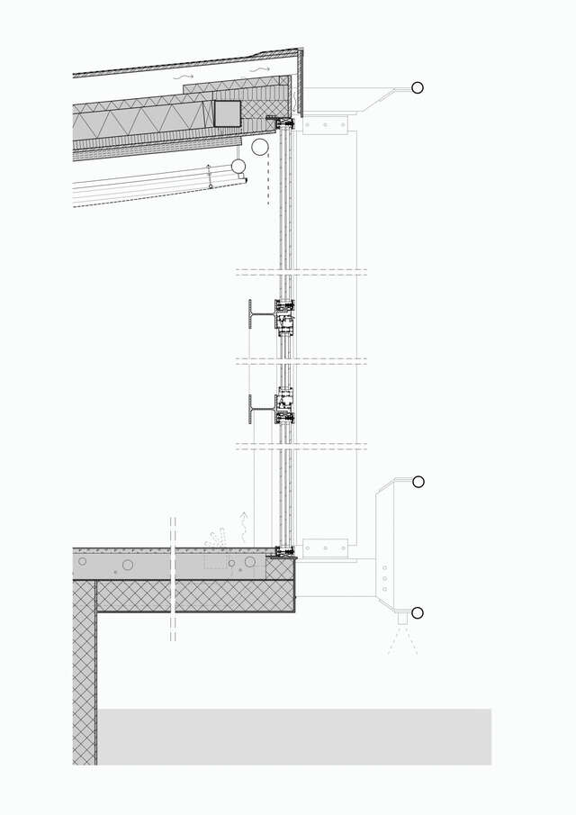
The entrance to the building is from the landing pier, which inclination depend on the level of the sea. One can also enter the restaurant by boat from its own landing stage. The steel structure and anchoring of the accommodation hulks as well as the building service engineering’s location and connection were developed especially for the building. One-fourth of the elevation is copper, and the rest is glass. The wavy window wall is one of the key features of the building’s architecture.
Location
Säästöpankinranta 3, Helsinki
Get directionsGallery





















