Lonna Sauna
Situated on Lonna Island near Helsinki, the sauna offers a modern interpretation of Finnish sauna traditions within a historic landscape.

Lonna Island is situated a short waterbus ride away from Helsinki Market Square, next to the Suomenlinna Fortress Island, which is a Unesco World Heritage site. Until 2016, the small Lonna Island was occupied by the Finnish army, after which it was opened to the public, like many other islands in the Helsinki archipelago.
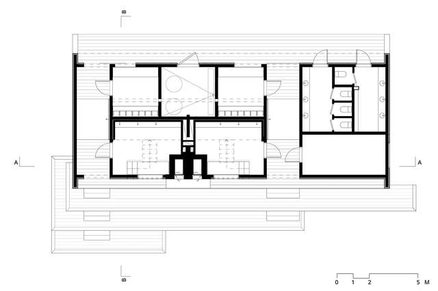
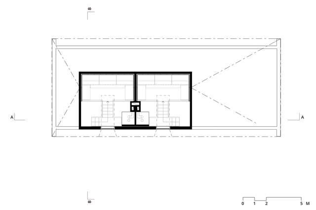
The design for a public sauna on the island was commissioned by the Governing Body of Suomenlinna. The wooden building designed by architect Anssi Lassila was completed in 2016. It is part of the continuum of the tradition of public saunas in Finland and of the newly revived urban sauna culture.
On the border between urban and nature, Lonna Sauna offers views of the silhouette of the city on one side and of the open sea on the other. The sauna fits in the context of a group of historical military structures built during the Russian rule in the 19th century.
The compact building has a handcrafted wooden log structure left bare and a sculptural pitched roof in zinc plate. The steam rooms have wood-burning stoves, which offer an authentic bathing experience while enjoying the view to the sea. While the atmosphere is that of a traditional Finnish sauna, the use of larch in the furnishings and the large window openings create a clearly contemporary feel.
Lonna Sauna was selected in the Finnish Architecture Biennial Review 2018. Extract from the jury report:
“The jury praised the log structure and the mostly handcrafted woodwork – a homage to the traditional sauna building. The sauna is like a sculpture made entirely of wood, save for the zinc roof, reminiscent of the pitched roofs of the older buildings on the island. Quite urban-looking from the outside, the spatial experience inside is completely different. It offers a sense of tranquillity, intimacy, and finally a dive into the landscape visible through the upper-level steam rooms.”
Location
Lonna, Helsinki
Get directionsGallery



























