Leivola School and Daycare Centre
The former forestry college forms a small campus of brick-clad buildings set in the woods, now adapted for school and daycare use.

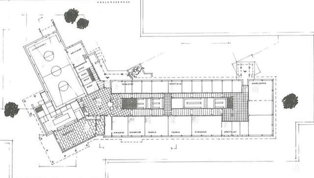
Leivola School and Daycare Centre building was initially built for Sotkamo forestry institute as a boarding college providing training for lumberjacks and forestry technicians. The project, completed in 1986, comprised teaching, working and living facilities for 136 students. Principal designer of the building was Heikki Taskinen, one of key architects of the Postmodernist ‘Oulu School’ in the 1980s. Taskinen was assisted by architect Martti Karsikas and architecture students Kaisu Mäkikyrö, Kaisa Hamido-Similä and Ilpo Okkonen.
The extensive programme was divided up into several smaller buildings dotted here and there in the pine woods: the hostels are somewhat separate and face the dark tarn, while the main road runs placidly on towards the comfortably castlelike college building. The shape of the latter’s roof is echoed in different places all over the area.
The aim was not to be institutional, but to produce a friendly working and living environment made up of units that conserve and underline the fine hilly Sotkamo terrain. On the other hand, the siting aims to achieve a degree of distance from the heterogeneous area of small houses nearby.
One key theme used is red brick, and this is also repeated in the interiors. A rather lighter secondary theme is wooden cladding, which can be found in different shades in all the buildings.
The school building was refurbished for a comprehensive teaching and daycare use in 2006.
Source: Finnish Architectural Review 6/1986
Location
Alkulantie 15, Sotkamo
Get directionsGallery


















