Lappeenranta City Theatre
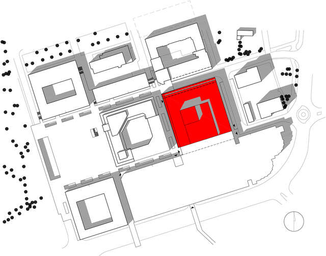
The new Lappeenranta City Theatre is housed, unusually for a theatre, within a new extension of a city centre shopping mall. The new theatre is an interesting example of a cultural institution’s mission to reach out to wider audiences by placing itself in the midst of people’s everyday environment.

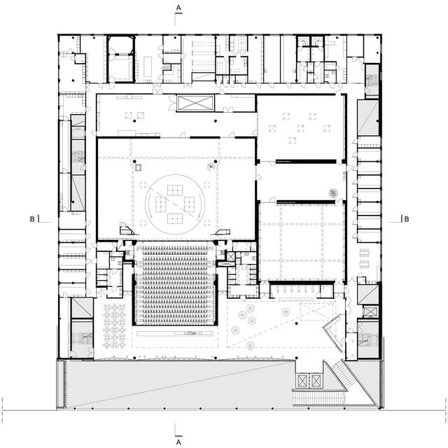
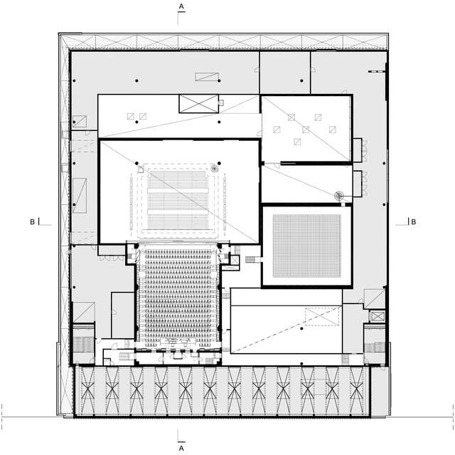
The building has no dramatic elevation to emphasise its role in the cityscape, as it is fully integrated with the top floors of the shopping mall. The foyer of the theatre opens up towards the high central hall of the mall, forming a part of its colourful interior landscape. The public spaces are furnished with monochrome dark and metallic surfaces providing a convincing contrast to the abundance of colour and information stimuli of the shopping mall. The theatre is part of the everyday buzz of the mall, and yet its elegant simplicity raises the ambiance above and beyond the ordinary.
Source: The Finlandia Prize for Architecture 2016 shortlist
Location
Kaivokatu 5, Lappeenranta
Get directionsGallery




























