Lapinmäki Daycare Centre
The Lapinmäki daycare centre is an example of contemporary wood architecture. Both the frame and the facades are of wood.

The pinewood planks of the facades are painted white with oli-based paint. The daycare centre was built in place of a demolished daycare centre building. The construction began in 2018 and the new daycare centre was taken into use in November 2019.
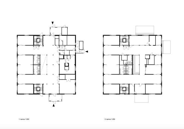
The floor plan of the two-storey daycare centre is based on a central lobby sided by group spaces on both sides. A skylight in the pitched roof gives natural light into the foyer.
Architect
Completion
2019
Gross Area
1662 m²
Category
Location
Kangaspellontie 6, Helsinki
Get directionsGallery








0) { resetZoom(); currentImageIndex--; currentImage = images[currentImageIndex].src; }"
@keydown.window.arrow-right="if (currentImageIndex < images.length - 1) { resetZoom(); currentImageIndex++; currentImage = images[currentImageIndex].src; }">
/















