Länsi-Säkylä Daycare Centre Onnimanni
The centre combines playful architectural forms with functional outdoor and indoor spaces for children.

A change in the law in 1973 regarding daycare provision increased the need to build new daycare centres, albeit at the end of the following decade municipalities were still being urged to meet the obligations of the legislation. The construction of daycare centres began to increase as well as take on new forms in regard to both their functions and architectural design. The buildings were adapted to the scale of the child, and natural materials were increasingly used. Architect Kari Järvinen has stated that already when designing the Lokki daycare centre in Lauttasaari, Helsinki, he examined how to create a secure territory and the world from the child’s point of view. These ideas were crystallized in the design of the Länsi-Säkylä daycare centre.
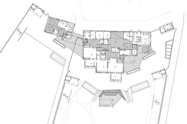
The Länsi-Säkylä Daycare Centre Onnimanni settles beautifully within a wooded landscape along a country road. The playgrounds for the different-aged children, the main daycare centre building, as well as the separate facility for the parish’s children’s club are linked together by sheltered outdoor areas, together forming a chain-like composition on the south side of the building complex. On the north side the fence-like and sculptural facade boldly frames the entrances and the points for pick-up and drop-off traffic – creating an almost urban feel. The architects Kari Järvinen and Timo Airas described their design objectives for the Länsi-Säkylä daycare centre as follows: “We wanted to create something more than just an ordinary building from the limited room programme; the building is a village. Through repeated oblique roof planes and a meandering line of windows, we have aimed for a joyful and playful human scale and an optimistic feeling of space.” (Arkkitehti, 7/1980)
The Länsi-Säkylä daycare centre is a milestone in the development of the building type, where the needs and experiences of particularly the largest user group – the children – were emphasised both in the exterior form and interior spaces. The village-like, small-scale daycare centre was designed with an empathy and appreciation for the world of children. The façades painted with red-ochre distemper and white gloss paint, and the varying window heights suitable for the different-aged users represented a new kind of architectural thinking. In accordance with the fire regulations of the time, the load-bearing structures and roof structure are built in concrete. According to the architects, the processed food company Lännen Tehtaat, whose factory was situated next to the daycare centre, supported the project, and together with the client – that is, the local municipality and parish – created, “through their trust, an unusually favourable design climate.”
The architectural significance of the Länsi-Säkylä daycare centre was recognised and acknowledged immediately on its completion: it was selected for inclusion in the Suomi rakentaa 6 [Finland Builds 6] exhibition in 1981, and even featured on a Finnish postage stamp in 1986 as one of a series of buildings representing the highest level of contemporary architecture. It was also included in the 2000 book Finland. 20th Century Architecture showcasing the nation’s most significant architectural works of the century.
Länsi-Säkylä Daycare Centre is listed on the DOCOMOMO Finland registered selection of important architectural and environmental modernist sites.
Text: Jonas Malmberg / DOCOMOMO Finland
Location
Maakunnantie 2, Säkylä
Get directionsGallery






















