Kouvola Central Church
Designed around functional principles, the church has a rectangular hall, glass-walled chancel, and adaptable rooms for concerts, meetings, and parish use.

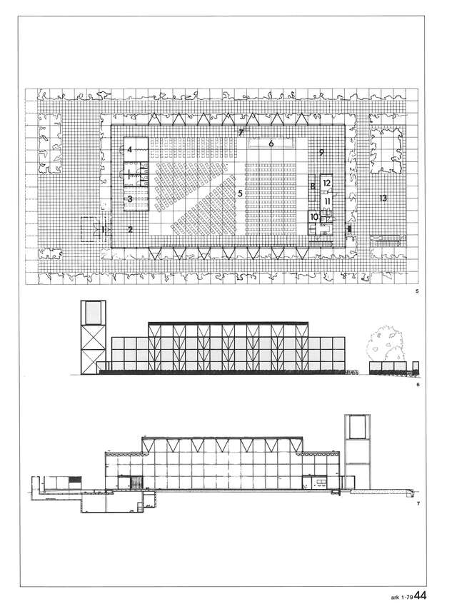
Kouvola congregation arranged an architectural competition for a central church in 1971, and chose to implement the entry that won second prize, designed by Jaakko and Kaarina Laapotti.The church site is just off the town centre. Kouvola Central Church stands on the site with its main entrance on the Papinkuja street. It lies in the middle of the park-like plot along the Salpausselänkatu axis.
The plan sought to establish identity through functional principles, such as the building’s role as a parish meeting place and more varied use of the church proper than at present, e.g. for concerts and other public functions. The location in the informal park-like setting also suggested the architectonic principle. The low-cost target also influenced the planning decisively.
The church is an independent public building dominating its immediate surroundings. The building type is a rectangular hall in which the main architectural motif is a carefully worked out structural system on a human scale.The rectangular plan has been handled asymmetrically. However, the main aisle cuts across the church diagonally. This theme is underlined by the fact that the church opens onto a courtyard via a glass wall behind the chancel. The fittings are movable and the furnishings adaptable. The church floor is on the same level as the surrounding ground. The plan tried to get away from the stiff, old-fashioned impression given by the traditional rectangular church, and to avoid the related associations.
The economy goal has been achieved by using conventional mechanical engineering and building techniques readily available in the town. The frame is steel and prefabricated concrete. The main construction comprises space frames which are partly internal and partly external. The secondary construction of the roof is prefabricated reinforced concrete units. The inside walls are brick, laid in a steel frame. The façade is faced with hard-anodized aluminium louvres. The windows are triple thermal glass in aluminium frames.
The seats are on a metal frame, upholstered and covered with fabric. The fittings of the altar area and chancel have a frame of polished stainless steel and the flat levels are stained wood. The dominant motif of the altar wall is metal composition of the symbols of the apostles and Christ, set in the structural grid of the wall (designed by Jaakko Laapotti).
Source: Finnish Architectural Review 1/1979
Location
Marjoniementie 5, Kouvola
Get directionsGallery














