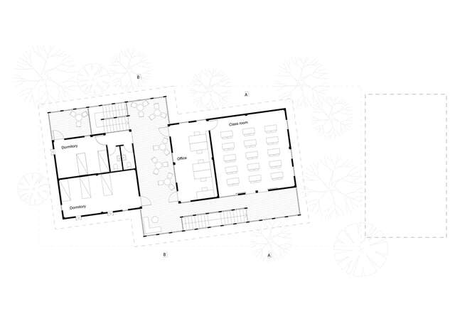
Kouk Khleang Youth Centre

Over the past few years Finnish architects have become involved in export projects inspired by local materials and traditional building methods in foreign cultures. Such projects typically highlight sustainability and communal co-design. The Kouk Khleang Youth Centre celebrates teamwork: it is the collective achievement of the architects, the local community, Cambodian students and international experts.
One of its goals was to revive interest in bamboo as a building material. The architectural highlight is the slatted bamboo façade, which creates a shifting play of light and shadow. The plastered brick walls provide an excellent foil for the eye-catching use of bamboo. The site – adjoining a defunct water treatment plant – was challenging, but the Youth Centre has breathed new life into the district, providing a quiet sanctuary in the busy, built-up neighbourhood.
Source: Finnish Architecture Biennial Review 2016 catalogue
Location
Oknha Try Heng St., Phnom Penh, Cambodia
Get directionsGallery














