Kirkkojärvi School
Kirkkojärvi School uses interlocking volumes and natural light orientation to create a flexible and welcoming environment for students.

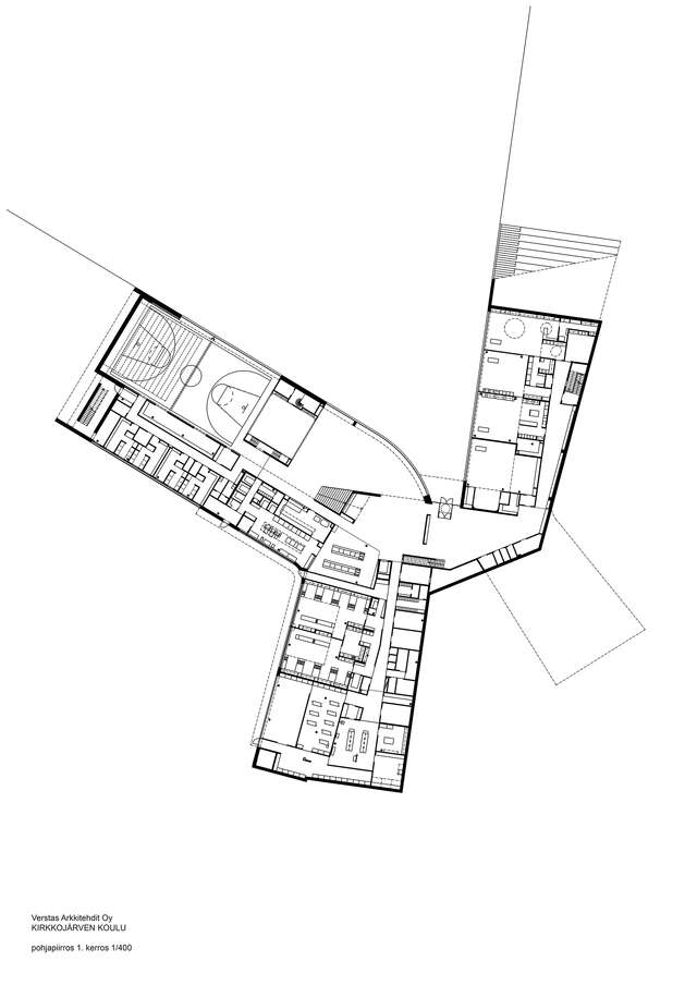
Kirkkojärvi School is located in a 1970s housing development close to Espoo Centre. The comprehensive school building for 770 pupils of grades 1 to 9 is the result of an open architectural competition held in 2006 and won by, at the time, a young and emerging architects’ office Verstas.
The name of the competition entry, “Veljet” (Brothers), is a clue to the basic layout of the building: two interlocking masses. The primary school is in the smaller volume, in the intimate and domestic-like spaces of the “little brother”, and the secondary school forms the larger curved mass of the “big brother” that also houses the dining hall and gymnastics hall. The main entrance and the high and spacious lobby are located between the two wings.
The building is placed on the site according to the direction of sunlight during the day. The primary school yards are oriented towards the morning sun, whereas the secondary school pupils enjoy the afternoon sun during their longer school days.
From the exterior the building is a combination of closed wall-like red brick facades and smaller scale wooden facades with large window openings. A playful use of different types of brick-laying and bonding techniques bring in mind Alvar Aalto’s Muuratsalo Experimental House.
In 2011, Kirkkojärvi School received the International Architecture Award, handed out by The Chicago Athenaeum Museum of Architecture and Design and The European Centre for Architecture, Art, Design and Urban Studies.
Text: Petteri Kummala
Location
Kotikyläntie 6, Espoo
Get directionsGallery
































