Kerava City Library

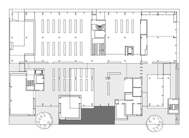
The library building is divided into two parts with clearly differing character. The large horizontal brickwork mass on the street side reflects the scale and materials of the buildings on the opposite side, while the winding series of ”wooden towers” towards Keskuspuisto park continues the sequence of surrounding point blocks.
The architecture of the interior is consistent with the exterior; the same dualism that is found in the exterior also dominates the library spaces. The foyer as a line through the middle of the building separates the two worlds.
The library was built based on the winning entry ”Keravan kollit” by QUAD Architects in an architecture competition in 2001. The building was completed in 2003.
Source: Finnish Architectural Review 6/2004
Location
Paasikivenkatu 12, Kerava
Get directionsGallery



















