Kannisto Community Centre
This school's playful exterior contrasts with a serene, well-organized interior for pupils and staff.

Kannisto is part of the Kivistö district in Vantaa. Its excellent location along the new ring rail line, which connects Helsinki city centre with the airport, and close to the site of the annual Housing Fare of Finland in 2015 has made it a significant new residential and business area in the capital region.
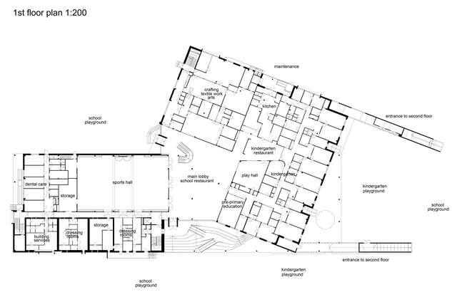
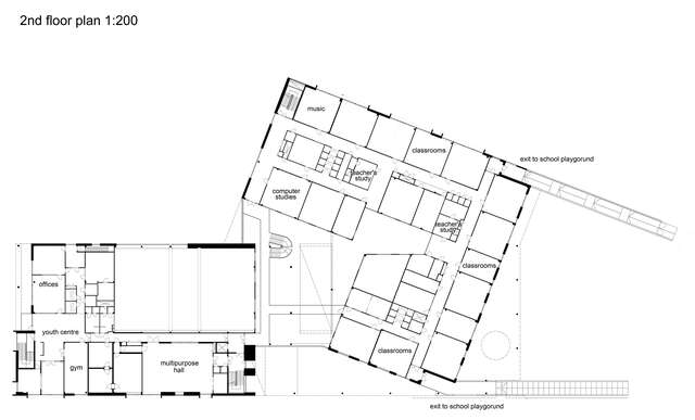
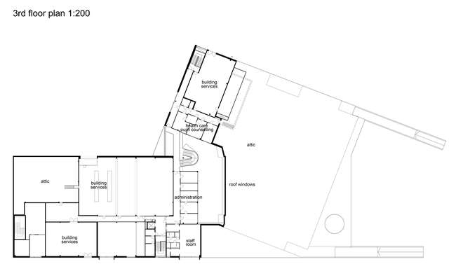
The new school in Kannisto is situated in a large park area between a predominantly single-family-house neighbourhood and a commercial centre. In addition to providing premises for a hundred daycare children and 500 primary school pupils, the building functions as a community centre with a youth centre and dental clinic. An extension is planned for 500 more pupils in a comprehensive school.
The different functions are situated in two separate rectangular units – a two-storey and a three-storey block – that connect to each other at a slight angle leaving in between a spacious and impressive three-storey high atrium space. The atrium serves as the main entrance lobby and dining hall. This basic spatial layout results in a wedge-formed floorplan and wave-shaped roof, which gives the building its characteristic look.
The exterior is striking in both form and colour. Different-sized cement composite panels in white and shades of green are used to create a vivid and playful patchwork. The facades are punctuated by protruding aluminium-framed windows. In contrast to the dynamic and exuberant exterior, the interior is more subdued and peaceful.
Text: Petteri Kummala
Location
Kenraalintie 6, Vantaa
Get directionsGallery

























