Kalasatama School and Daycare Centre
Kalasatama School provides versatile interiors that reflect both educational needs and the surrounding district.

Kalasatama, formerly an industrial and harbour area, is developing into a new residential and business district less than 10 minutes from the city centre by metro. The first part of the new district is already built and by the estimated completion in 2040 there will be 25 000 inhabitants and 10 000 jobs in the area.
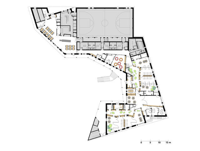
Kalasatama School is designed to be an inviting public building in the new district. The colourful, meandering appearance makes the school stand out among the surrounding residential buildings. The school is built in phases in pace with the district’s progression. The first phase was completed in 2016.
The teaching facilities are designed to support the new national curriculum and the latest pedagogical ideas. The spaces can easily be altered and joined together by opening partition walls and the furnishing solutions enable modifications for different teaching situations, thus creating a perfect environment for phenomenon-based learning.
The building itself can also be used as an educational tool. All the technical installations are left visible so that the pupils can study, for example, where fresh air comes in from and where water goes out. In result, the interiors have a somewhat industrial feel. As a softening contrast, wood has been extensively used in the interior.
The second phase of construction will extend the school building all around the courtyard. The extensionwill include facilities for older students,a dining hall, stage and library. When completed, the architecture will reflect the pupils’ growing process: starting in a small-scale single-storey daycare centre and moving up to a three-storey comprehensive school. Altogether the school will house 700 pupils.
Text: Petteri Kummala
Location
Polariksenkatu 1, Helsinki
Get directionsGallery































